Коммерческая недвижимость / ПСН (Помещение Свободного Назначения) / Продажа ПСН (Помещение Свободного Назначения), Россия, Москва, Москва, Алтуфьевское, 21 638 240

Лот: 7138
Цена
21 638 240 руб.
Площадь
- / - / -
Комнат
1
Этаж
1 / 10

Информация

Тип сделки
Продажа
Тип контракта
Продажа объекта
Заголовок для Авито
Продажа Помещения в Многофункциональном комплексе будущего
Тип
Продажа ПСН (Помещение Свободного Назначения)
Тип планировки
Открытая
Система налогообложения
УСН
Цена аренды за
за м2 в год
Кол.во комнат
1
Этаж
1
Этажность
10
Срок предоплаты, месяцев
Без залога
Линия домов
первая
Состояния Ремонта
Требуется капитальный ремонт
Высота потолков
2.6
Вход в объект
Общий с улицы
Парковка
Подземная
Тип парковки
В здании
Отделка
Без отделки
Витринные окна
да
Количество мокрых точек
нет
Адрес
г Москва, Алтуфьевское шоссе, д 35 к 1
Страна
Россия
Регион
Москва
Город
Москва
Метро
Отрадное
Район
Отрадное
Улица
Алтуфьевское
Номер дома
35, к 1
Номер ИФНС
7715
Административный округ
Северо-восточный

Описание

ЛОТ 7138  Вашему вниманию предлагается Продажа Street Retail  ПСН ( Помещение Свободного Назначения) в Многофункциональном  комплексе  нового индустриального типа. 

До станции МЦД 1  “Дегунино” 2 м и н .   п е ш а я д о ст у п н о сть   м. Отрадное 1 8 м и н . п е ш а я д о ст у п н о ст ь

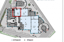
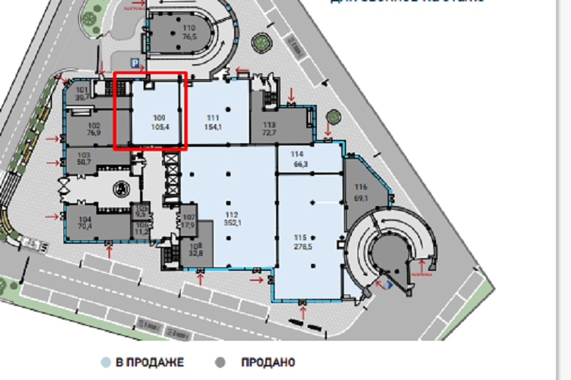
ХАРАКТЕРИСТИКИ   ПОМЕЩЕНИЯ

Площадь105,4     Этаж:  1         Планировка: открытая 

Высота  потолков: 3,85 м      Мокрая   точка:  на этаже  Душевые кабины для сотрудников> 

 Окна Панорамные           Вход:  одельный с улицы                 Отделка: без отделки 

Безопасность. Система умного доступа к зданию обеспечивает безопасность ;

Готовность:   сдача обьекта 4-й квартал 2027 года 

Спринклерная система пожаротушения   

Централизованная система вентиляции и кондиционировани ;   Лифты производства :Otis

Возможа Комбинация офисных и складских/ производственных площадей на одном этаже  

Комфортная логистика. Обеспечение заезда транспорта на  этаж 

Оснащение двумя грузовыми боксами на уровне пола 

Душевые кабины для сотрудников    Переговорные комнаты и комнаты телефонных разговоров

Подземный паркинг, включающий места для мототранспорта, зоны хранения, электрозарядные станции, и лифт в подвальный уровень  

  Т РА Н С П О РТ Н АЯ Д О СТУП Н О СТ Ь    1 2 м и н М КА Д   :  4 м и н С ВХ  : 1 5 м и н Т Т К  

КОММЕРЧЕСКИЕ   УСЛОВИЯ   Программа рассрочек под 0% 

 на 1 год, первоначальный взнос 30%

на 2 года, первоначальный взнос 50%            Договор : Договор купли-продажи будущей вещи

Чтобы получить ПОДРОБНУЮ ПРЕЗЕНТАЦИЮ С ПЛАНИРОВКОЙ И ФОТОГРАФИЯМИ, звоните или отправьте свой email и номер телефона

в сообщении на портале.

Продажа  ПСН 147 мКв Алтуфьевское шоссе, 35к1

Продажа ПСН (Помещение Свободного Назначения)

ЛОТ 7134  Вашему вниманию предлагается Продажа  ПСН ( Помещение Свободного Назначения) в Многофункциональном  комплексе ...

22 900 000
147,7// м2
Этаж: 4/10
Продажа
Продажа  ПСН 15 мКв Алтуфьевское шоссе, 35к1

Продажа ПСН (Помещение Свободного Назначения)

ЛОТ 7135  Вашему вниманию предлагается Продажа  ПСН ( Помещение Свободного Назначения) в Многофункциональном  комплексе ...

2 651 040
15,8// м2
Этаж: 6/10
Продажа
Продажа  ПСН 231  мКв Алтуфьевское шоссе, 35к1

Продажа ПСН (Помещение Свободного Назначения)

ЛОТ 7137  Вашему вниманию предлагается Продажа Офиса  в Многофункциональном  комплексе  нового индустриального...

46 990 000
231,6// м2
Этаж: 7/10
Продажа
Продажа  ПСН 1537  мКв Алтуфьевское шоссе, 35к1

Продажа ПСН (Помещение Свободного Назначения)

ЛОТ 7136  Вашему вниманию предлагается Продажа  ПСН ( Помещение Свободного Назначения) в Многофункциональном  комплексе ...

229 000 000
1537,3// м2
Этаж: 2/10
Продажа
Продажа  ПСН 352 мКв Алтуфьевское шоссе, 35к1

Продажа ПСН (Помещение Свободного Назначения)

ЛОТ 7139  Вашему вниманию предлагается Продажа Street Retail  ПСН ( Помещение Свободного Назначения)...

59 840 000
352,1// м2
Этаж: 1/10
Продажа